颠覆传统建筑业!塑料垃圾变砖头,比混凝土还结实!
来源:最黑科技
以下文章来源于创下一个新 ,作者创新君

话说据统计,全球每一年就有十亿吨的塑料垃圾,相当于一个珠穆朗玛峰,这已经是世界难题。

为了减少这些白色污染,人们也在不断尝试。
我们曾介绍过荷兰的非营利组织The Ocean Cleanup设计了一艘船,叫做Interceptor,翻译过来的意思就是“拦截器“。

名副其实,这家伙就像是漂在水上的巨大吸尘器,能够把浮在水上的垃圾都收集起来。

还有一个名为Recycled Island Foundation的环保组织,他们直接把垃圾制作成建筑材料。

并且,用这些材料在鹿特丹的一条河上造了一个公园。

无独有偶,一家名叫ByFusion的公司也找到了一种处理垃圾的方法,就是把它们变成建筑用的砖头。

据称,不用添加任何的化学物质,也不需要复杂的清洗、分类程序,而是利用蒸汽和压缩处理,就可以将垃圾变成建筑砖块。

并且,和传统的混凝土相比更坚固耐用。
普通的混凝土砌块用力一摔就碎了。

而这个塑料砖块却不会。

就算用锤子猛砸,它也是安然无恙。

除此之外,承重也很好,一辆卡车在上面开都没问题。

同时,它还具有一定耐火的特性。

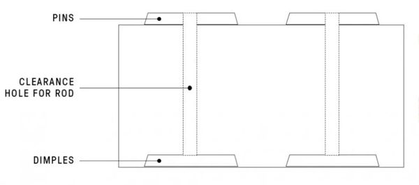
这个塑料砖块叫做ByBlock,每块的尺寸都是固定的,均为40cm x 20cm x 20cm,重量为十公斤。
外形如同一个乐高积木,每个都有两个通孔,上面有两个圆形凸起,而下面则有两个凹坑。

用它盖房子,不需要任何添加剂或填料、胶水或砂浆。取而代之的是,一些金属杆固定在底座内,并延伸穿过每个砖块。同时,上下的凹坑和凸起紧扣在一起就好。


据称,比传统的建筑时间能节省一半。

当然,外立面还可以根据需要,贴上不同的材质装饰。这样,看起来就和普通的房子没有什么区别。

值得一提的是,这些砖块应用相当广泛,从景观园艺,到户外休闲椅和围栏,再到住宅或办公室等小型建筑都能用它来建造。

目前,已经建成了两个项目,分别是一个学校的运动馆和一个海边的救生塔。


把塑料垃圾变成了砖头,这简直是一举两得:既减少了白色污染,又能用它来盖房。更重要的是比混凝土块还结实,打破了传统的建筑方法和形式。
评论列表 共有 0 条评论
最新导读

热门文章




发表评论 取消回复